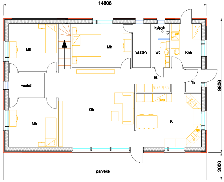
Saimme ensimmäiset luonnoskuvat muutama viikko sitten, julkisivukuvat laitoin blogiin jo aikaisemmassa postauksessa. Pohjapiirustus oli lähes neliön muotoinen ja siinä oli avokeittiö, joten keittiön ja olohuoneen osalta haluttiin muutoksia pohjaan. Lisäksi halusimme yläkertaan pienen vieras WC:n.
Maanantaina ajoimme Klaukkalaan tapaamaan arkkitehtiä mielessämme vain pari pientä muutosta. Kahden ja puolen tunnin jälkeen koko talo oli myllätty uusiksi ja pohjaratkaisu oli muuttunut neliöstä suorakulmioksi. Nyt sitten taas odotellaan kuvia pari viikkoa ja katsotaan sitten miltä näyttää. Luultavasti vielä tulee ainakin pieniä muutoksia.
Laitoin tänään tarjouspyynnön Uudenmaan pohjatutkimus Oy:lle (UPT Oy) maaperätutkimuksesta. Täytyy sanoa että oli tosi nopeaa toimintaa heiltä, tarjous nimittäin tuli sähköpostiin yhdeksän minuutin päästä sen lähettämisestä. Tarjouksen hinta oli 900€ (alveineen ja matkakuluineen). Tarjous sisälsi pintavaaituksen, 6-8 kairausta (tarjouspyynnössä oli 4 talolle ja 2 autokatokselle) ja perustamistapalausunnon.
Tilasin maaperätutkimuksen UPT:ltä ja sain tilausvahvistuksen jossa sanottiin että tutkimus tullaan tekemään 2.1.2013 iltapäivällä. Talven tulo ja mahdollinen lumi ei kuulemma haittaa tutkimuksen tekoa. Halvempiakin tarjouksia olisi varmaan saanut jos olisi pyytänyt mutta arkkitehtimme ja monet rakennusblogit suosittelivat yritystä, joten valitsimme heidät.
Pohjatutkimusta varten tarvitaan asemapiirros, kaupungin tonttikartta ja johtokartta.
torstai 22. marraskuuta 2012
sunnuntai 18. marraskuuta 2012
Puuta, kiveä vai MUUTA 3
Muuta. Yksi vaihtoehto on hirsitalo, ei mikään ristinurkilla varustettu huvilan näköinen vaan city-nurkilla varustettu moderni hirsitalo.
Hirsi pitää talon kosteusvaihtelut kunnossa sillä se sitoo itseensä ylimääräistä kosteutta ja luovuttaa sitä takaisin kun sisäilma kuivuu liikaa. Hirsitaloissa on vaan huomioitava hirren painuminen, olisi ikävää parin vuoden päästä huomata että ikkunat pullistuvat ja lähtevät kuin nappi paidasta. Toisaalta nykyisissä lamellihirsissä painuminen on vähäistä, noin 10 mm. Lamellien kiinnittämisessä käytetyn liiman pitäisi olla hengittävää...
Jos meille tulee hirsitalo, niin sen pitäisi ulospäin näyttää enemmän puutalolta kuin hirsitalolta. Siksi hirren korkeus eli nousu merkitsee paljon, mitä pienempi se on, sitä enemmän hirsitalo näyttää puutalota. Mitä korkeampi se on, sitä enemmän talo näyttää huvilalta tai mökiltä. Hirren paksuus pitäisi olla 20-30 cm ja sen korkeus saisi olla enintään 20-25 cm. Alla on tällä hetkellä vaihtoehtoina olevien toimittajien hirsimalleja.
Honkataloilta löytyy matalin hirren profiili ja siltä osin se muistuttaisi eniten puutaloa. Lisäksi heiltä löytyy vaakalamelli, jossa ei ainakaan pitäisi esintyä liimasta johtuvia ongelmia.
Kuusamo hirsitaloilla hirren korkeus on vielä sopiva. Ensi viikonloppuna on Kirkkonummella heidän taloesittelynsä, tarkoitus olisi mennä katsomaan miltä uusi hirsitalo näyttää.
Finlamellilla hirren korkeus alkaa jo mennä liian suureksi.
Kontion hirren profiili on kaikkein korkein.
Lopuksi vielä pari kuvaa miltä hirsitalo näyttää matalla hirsiprofiililla. Ulkopuolelta ei voi sanoa että onko kyseessä puutalo vai hirsitalo.
Hirsi pitää talon kosteusvaihtelut kunnossa sillä se sitoo itseensä ylimääräistä kosteutta ja luovuttaa sitä takaisin kun sisäilma kuivuu liikaa. Hirsitaloissa on vaan huomioitava hirren painuminen, olisi ikävää parin vuoden päästä huomata että ikkunat pullistuvat ja lähtevät kuin nappi paidasta. Toisaalta nykyisissä lamellihirsissä painuminen on vähäistä, noin 10 mm. Lamellien kiinnittämisessä käytetyn liiman pitäisi olla hengittävää...
Jos meille tulee hirsitalo, niin sen pitäisi ulospäin näyttää enemmän puutalolta kuin hirsitalolta. Siksi hirren korkeus eli nousu merkitsee paljon, mitä pienempi se on, sitä enemmän hirsitalo näyttää puutalota. Mitä korkeampi se on, sitä enemmän talo näyttää huvilalta tai mökiltä. Hirren paksuus pitäisi olla 20-30 cm ja sen korkeus saisi olla enintään 20-25 cm. Alla on tällä hetkellä vaihtoehtoina olevien toimittajien hirsimalleja.
Honkataloilta löytyy matalin hirren profiili ja siltä osin se muistuttaisi eniten puutaloa. Lisäksi heiltä löytyy vaakalamelli, jossa ei ainakaan pitäisi esintyä liimasta johtuvia ongelmia.
![]() |
Honkatalojen pystylamelli |
![]() |
Honkatalojen vaakalamelli |
Kuusamo hirsitaloilla hirren korkeus on vielä sopiva. Ensi viikonloppuna on Kirkkonummella heidän taloesittelynsä, tarkoitus olisi mennä katsomaan miltä uusi hirsitalo näyttää.
![]() |
Kuusamon hirsitalojen rakenne |
Finlamellilla hirren korkeus alkaa jo mennä liian suureksi.
![]() |
Finlamellin kaksikerros rakenne |
Kontion hirren profiili on kaikkein korkein.
![]() |
Kontion kaksikerros rakenne |
Lopuksi vielä pari kuvaa miltä hirsitalo näyttää matalla hirsiprofiililla. Ulkopuolelta ei voi sanoa että onko kyseessä puutalo vai hirsitalo.
![]() |
Tampereen asuntomessut 2012, Villa Harmony |
![]() |
Tampereen asuntomessut 2012, Villa Harmony, keittiön hirsiseinä |
lauantai 17. marraskuuta 2012
Puuta, KIVEÄ vai muuta 2
Kiveä. Kivitalo oli aluksi vain minun ajatuksissa. Marita ei halunnut sellaista, ei ennenkuin ensimmäiset luonnoskuvat tulivat arkkitehdiltä. Piirustuksissa oleva kivitalo näytti sen verran hyvältä että Marita kysyi minulta että pyydetäänkö me tarjousta kivitalosta... Ja minä kun olin juuri hyväksynyt ajatuksen puutalosta.
Kivitaloista siporex (minun entinen kivitalosuosikkini), betonivaluharkot ja muut valuharkot (styrox, sps, xps, uretaani tms.) ovat poissa laskuista. Jos meille tulee kivitalo, niin se tulee olemaan muuratuista kevytsoraharkoista. Julkisivuna olisi joko rappaus tai tiili. Kivitalon hyvänä puolina on muoviton rakenne, massiivinen varaava seinä (talvella lämmin, kesällä viileä) ja hyvä ääneneristys.
Tiiliverhous voidaan tehdä minkä rakenteen ympärille tahansa. Meillä vaihtoehdot olisivat harkko + tiili tai täystiilitalo (Wienerberger tai Tiileri). Tiilitalossa olisi ulkopinta heti valmis ja huoltovapaa. Tiilen väriksi ei tule valkoista eikä keltaista, eikä mitään rosopintaista.
Kivitaloista siporex (minun entinen kivitalosuosikkini), betonivaluharkot ja muut valuharkot (styrox, sps, xps, uretaani tms.) ovat poissa laskuista. Jos meille tulee kivitalo, niin se tulee olemaan muuratuista kevytsoraharkoista. Julkisivuna olisi joko rappaus tai tiili. Kivitalon hyvänä puolina on muoviton rakenne, massiivinen varaava seinä (talvella lämmin, kesällä viileä) ja hyvä ääneneristys.
Tiiliverhous voidaan tehdä minkä rakenteen ympärille tahansa. Meillä vaihtoehdot olisivat harkko + tiili tai täystiilitalo (Wienerberger tai Tiileri). Tiilitalossa olisi ulkopinta heti valmis ja huoltovapaa. Tiilen väriksi ei tule valkoista eikä keltaista, eikä mitään rosopintaista.
![]() |
HB-betonin seinärakenne |
![]() |
Tiilitalon seinärakenne |
keskiviikko 14. marraskuuta 2012
Ensimmäiset luonnoskuvat saatu
Arkkitehtimme lähetti ke 7.11. ensimmäiset luonnoskuvat talostamme. En laita vielä pohjapiirustuksia tänne koska niihin tulee muutoksia. Siinä oli avokeittiö ja Marita ei halunnut sellaista. Erillistä keittiötä ei varmaankaan saada, paitsi jos ollaan valmiita luopumaan isosta kuistista. Katsotaan jos vaikka saataisiin takka tilanjakajaksi olohuoneen ja keittiö/ruokailutilan väliin.
Tässä on kuitenkin pari kuvaa siitä miltä talo näyttäisi ulospäin, tosin kivitalona. Rakennusmateriaalia ei olla vielä päätetty.
Tässä on kuitenkin pari kuvaa siitä miltä talo näyttäisi ulospäin, tosin kivitalona. Rakennusmateriaalia ei olla vielä päätetty.
![]() |
Asemapiirros |
![]() |
Talon pääsisäänkäynti on kaakkoon päin |
![]() |
Lounaaseen päin aukeavat parveke ja terassi |
Asunto myyty
Nyt on vanha asunto sitten myyty tai ainakin paperit on allekirjoitettu.
Ensimmäisen yksityisnäytön jälkeen meille jätettiin ehdollinen tarjous, joka olisi rauennut jos ostaja ei olisi saanut omaa asuntoaan myytyä. Lisäksi meidän olisi pitänyt teetättää kosteusmittaus (muutama vuosi sitten remontoituun kylpyhuoneeseen jossa on suihkukaappi). Tarjouksen velaton hinta oli 220 000 euroa, meille olisi jäänyt noin 215 700 euroa. Tarjouksen hyväksyminen olisi tarkoittanut sitä että yleistä esittelyä ei olisi pidetty. Emme hyväksyneet tätä ehdollista tarjousta.
Sunnuntaina 4.11 oli asunnon yleinen esittely ja paikalla kävi 12 ostajaehdokasta. Näistä kolme oli kiinnostuneita mutta yksikään ei jättänyt suoraan tarjousta. Maanantaina kiinteistövälittäjämme Tase soitti että nämä kolme olisivat halukkaita tulemaan katsomaan asuntoa uudestaan, eri päivinä tietenkin. Joten asuntoa siivottiin ja järjesteltiin sitten pitkin viikkoa esittelykuntoon ja voin sanoa ettei se ollut mikään helppo tehtävä koska kaksi lasta ja koira pitivät huolen siitä että asunto oli aina erittäin asutun näköinen (=sotkuinen).
Tiistaina asuntoa kävi katsomassa nuori pariskunta, jotka jättivät heti tarjouksen, myyntihinta 212 500 euroa + velkaosuus n. 4300 euroa. Lisäksi vaatimuksena oli että taloyhtiö korjauttaa toisen makuuhuoneen rikkinäisen kattolämmityspaneelin. Tarjous olisi voimassa torstaihin klo 18 asti. Päätimme kuitenkin katsoa mitä kaksi muuta ostajaehdokasta tekevät, joten esittelyt jatkuivat keskiviikkona ja torstaina.
Kumpikaan jälkimmäisistä ostajaehdokkaista ei ollut valmis jättämään tarjousta heti. Joten vähän ennen tiistaina jätetyn tarjouksen umpeutumista Tase soitti ostajaehdokkaille että emme hyväksyneet tarjousta sellaisenaan vaan teimme vastatarjouksen 215 000 + velkaosuus. Seuraavana päivänä ostajaehdokkaat ilmoittivat että he hyväksyvät vastatarjouksen mutta sillä ehdolla että taloyhtiö korjauttaa kattolämmityksen.
Tässä vaiheessa Tase otti ja lähti viikonlopuksi pohjoiseen. Isännöitsijän kanssa keskusteltuani olimme tilanteessa jossa taloyhtiö ei suostuisi korjaamaan kattolämmitystä koska huoneeseen oli asennettu toimiva sähköpatteri. Eli olimme sopimuksettomassa tilassa ja uutta näyttöä ei ollut ehditty miettiä ja Facebookin päivitysten perusteella Tase oli juhlimassa Levillä.
Ostajaehdokkaat olivat kuitenkin soittaneet isännöitsijälle ja hyväksyneet tilanteen. Tasekin aikanaan saapui Leviltä ja asiat saatiin sovittua ostajien kanssa. Eli nyt asunto on sitten myyty ja kauppakirjan allekirjoitus on 7.1.2013. Asunnon pitää olla tyhjä 20.1.2013, joten tavaroiden pakkaaminen alkaa piakkoin. Nyt pitäisi löytää sopiva varastotila kaikelle meidän romulle ja sitä on paljon, kolme peräkärryllistä on jo viety maalle.
ps. Muutamme rakentamisen ajaksi Maritan vanhempien luokse Hakunilaan.
Ensimmäisen yksityisnäytön jälkeen meille jätettiin ehdollinen tarjous, joka olisi rauennut jos ostaja ei olisi saanut omaa asuntoaan myytyä. Lisäksi meidän olisi pitänyt teetättää kosteusmittaus (muutama vuosi sitten remontoituun kylpyhuoneeseen jossa on suihkukaappi). Tarjouksen velaton hinta oli 220 000 euroa, meille olisi jäänyt noin 215 700 euroa. Tarjouksen hyväksyminen olisi tarkoittanut sitä että yleistä esittelyä ei olisi pidetty. Emme hyväksyneet tätä ehdollista tarjousta.
Sunnuntaina 4.11 oli asunnon yleinen esittely ja paikalla kävi 12 ostajaehdokasta. Näistä kolme oli kiinnostuneita mutta yksikään ei jättänyt suoraan tarjousta. Maanantaina kiinteistövälittäjämme Tase soitti että nämä kolme olisivat halukkaita tulemaan katsomaan asuntoa uudestaan, eri päivinä tietenkin. Joten asuntoa siivottiin ja järjesteltiin sitten pitkin viikkoa esittelykuntoon ja voin sanoa ettei se ollut mikään helppo tehtävä koska kaksi lasta ja koira pitivät huolen siitä että asunto oli aina erittäin asutun näköinen (=sotkuinen).
Tiistaina asuntoa kävi katsomassa nuori pariskunta, jotka jättivät heti tarjouksen, myyntihinta 212 500 euroa + velkaosuus n. 4300 euroa. Lisäksi vaatimuksena oli että taloyhtiö korjauttaa toisen makuuhuoneen rikkinäisen kattolämmityspaneelin. Tarjous olisi voimassa torstaihin klo 18 asti. Päätimme kuitenkin katsoa mitä kaksi muuta ostajaehdokasta tekevät, joten esittelyt jatkuivat keskiviikkona ja torstaina.
Kumpikaan jälkimmäisistä ostajaehdokkaista ei ollut valmis jättämään tarjousta heti. Joten vähän ennen tiistaina jätetyn tarjouksen umpeutumista Tase soitti ostajaehdokkaille että emme hyväksyneet tarjousta sellaisenaan vaan teimme vastatarjouksen 215 000 + velkaosuus. Seuraavana päivänä ostajaehdokkaat ilmoittivat että he hyväksyvät vastatarjouksen mutta sillä ehdolla että taloyhtiö korjauttaa kattolämmityksen.
Tässä vaiheessa Tase otti ja lähti viikonlopuksi pohjoiseen. Isännöitsijän kanssa keskusteltuani olimme tilanteessa jossa taloyhtiö ei suostuisi korjaamaan kattolämmitystä koska huoneeseen oli asennettu toimiva sähköpatteri. Eli olimme sopimuksettomassa tilassa ja uutta näyttöä ei ollut ehditty miettiä ja Facebookin päivitysten perusteella Tase oli juhlimassa Levillä.
Ostajaehdokkaat olivat kuitenkin soittaneet isännöitsijälle ja hyväksyneet tilanteen. Tasekin aikanaan saapui Leviltä ja asiat saatiin sovittua ostajien kanssa. Eli nyt asunto on sitten myyty ja kauppakirjan allekirjoitus on 7.1.2013. Asunnon pitää olla tyhjä 20.1.2013, joten tavaroiden pakkaaminen alkaa piakkoin. Nyt pitäisi löytää sopiva varastotila kaikelle meidän romulle ja sitä on paljon, kolme peräkärryllistä on jo viety maalle.
ps. Muutamme rakentamisen ajaksi Maritan vanhempien luokse Hakunilaan.
lauantai 10. marraskuuta 2012
PUUTA, kiveä vai muuta 1
Asuinkerroksen rakennusmateriaalin valinta on jo vähän vaikeampaa kuin kellarin koska vaihtoehtoja on enemmän.
Puuta. Yksi vaihtoehto on pyytää parilta puutalotoimittajalta tarjous talopaketista. Tässä on todennäköisimmät talopaketti vaihtoehdot, molemmat ovat suurelementtitoimittajia ja molempia on meille suositeltu. Talopaketteja on saatavana erilaisilla valmiusasteilla, lähtien pelkän rungon pystytyksestä aina avaimet käteen toteutukseen saakka.
Jetta-talo. Tekevät yhteistyötä Potiuksen kanssa, joten kellarin saisi sitä kautta samalla kertaa. Naapuriin rakennetaan juuri parhaillaan paritaloa, jossa on Potiuksen kellari ja Jetta-talon yläkerta.
Planiatalo. Toiset naapurit rakensivat viime vuonna rinnetalon, johon tuli harkoista tehty kellari ja yläkerta Planiatalolta. Ulkoverhouksena on kylläkin tiili.
Toinen vaihtoehto on paikallaan rakennettava puutalo. Olen viime aikoina lukenut muutamaa puutaloblogia ja niiden kautta alkanut kiinnostumaan paikalla rakentamisesta tai rakennuttamisesta. Siinä voidaan helpommin toteuttaa ratkaisu jossa käytetään eristeenä puukuitueristettä ja korvataan höyrynsulkumuovi ilmansulkupaperilla (hengittävä rakenne)..
Siihen tuleva seinäratkaisu olisi jotakuinkin tällainen.
Ulkoseinän rakenne:
Puuta. Yksi vaihtoehto on pyytää parilta puutalotoimittajalta tarjous talopaketista. Tässä on todennäköisimmät talopaketti vaihtoehdot, molemmat ovat suurelementtitoimittajia ja molempia on meille suositeltu. Talopaketteja on saatavana erilaisilla valmiusasteilla, lähtien pelkän rungon pystytyksestä aina avaimet käteen toteutukseen saakka.
Jetta-talo. Tekevät yhteistyötä Potiuksen kanssa, joten kellarin saisi sitä kautta samalla kertaa. Naapuriin rakennetaan juuri parhaillaan paritaloa, jossa on Potiuksen kellari ja Jetta-talon yläkerta.
![]() |
Tässä on Jetta-talon seinäratkaisu |
Planiatalo. Toiset naapurit rakensivat viime vuonna rinnetalon, johon tuli harkoista tehty kellari ja yläkerta Planiatalolta. Ulkoverhouksena on kylläkin tiili.
![]() |
Tässä on Plania talon seinäratkaisu |
Toinen vaihtoehto on paikallaan rakennettava puutalo. Olen viime aikoina lukenut muutamaa puutaloblogia ja niiden kautta alkanut kiinnostumaan paikalla rakentamisesta tai rakennuttamisesta. Siinä voidaan helpommin toteuttaa ratkaisu jossa käytetään eristeenä puukuitueristettä ja korvataan höyrynsulkumuovi ilmansulkupaperilla (hengittävä rakenne)..
Siihen tuleva seinäratkaisu olisi jotakuinkin tällainen.
Ulkoseinän rakenne:
- 28 mm, ulkoverhouslauta
- 25 mm, tuuletettu ilmarako, pystylaudoitus 25x100 k600
- 25 mm, tuulensuojalevy
- 198 mm, kantava rakenne, tolpat 48x198 + puukuitueriste
- 0,2 mm, ilmansulkupaperi
- 22+22 mm, koolaus
- 13 mm, kipsilevy
![]() |
Kuvassa on puukuitueriste asennettuna |
Kellari
Olen pohtinut tulevan talomme kellarin rakennustapaa. Vaihtoehtoja olisi tällä hetkellä kaksi, joko kevytsoraharkoista (Saint-Gobain Weber Oy, HB-betoni) tai valmiista betonielementeistä tehty kellari (Potius).
Potiuksen betonielementin rakenne on seuraavanlainen: sisäkuori 120 mm betonia, lämmöneriste 180 mm, ulkokuori 80 mm betonia, U-arvo 0,17.
Potiuksen kellarin hyviä puolia on nopea, parissa päivässä tapahtuva pystytys ja ulkoseinä on heti valmis. Sisäseinäkin voidaan jättää esim. varastotilojen osalta betonipinnalle eli ei välttämättä tarvita erillistä pinnoittamista.
Kevytsoraharkkojen rakenne on seuraavanlainen(esimerkki Leca harkoista): Perusharkko RUH-380 leveys 380 mm. Eristeharkko LTH-380, leveys 380 mm, U-arvo 0,15.
Eristeharkkoja käytetään maanpinnan yläpuolisissa rakenteissa ja noin kaksi kerrosta maanpinnan alapuolella. Maanpaineseinät rakennetaan aina eristeettömistä perusharkoista ja ulkopinnassa käytetään tarvittaessa lisäeristystä.
Potiuksen betonielementin rakenne on seuraavanlainen: sisäkuori 120 mm betonia, lämmöneriste 180 mm, ulkokuori 80 mm betonia, U-arvo 0,17.
Potiuksen kellarin hyviä puolia on nopea, parissa päivässä tapahtuva pystytys ja ulkoseinä on heti valmis. Sisäseinäkin voidaan jättää esim. varastotilojen osalta betonipinnalle eli ei välttämättä tarvita erillistä pinnoittamista.
![]() |
Kuvassa Potiuksen kellarin pystytystä betonisandwich elementeistä |
Kevytsoraharkkojen rakenne on seuraavanlainen(esimerkki Leca harkoista): Perusharkko RUH-380 leveys 380 mm. Eristeharkko LTH-380, leveys 380 mm, U-arvo 0,15.
Eristeharkkoja käytetään maanpinnan yläpuolisissa rakenteissa ja noin kaksi kerrosta maanpinnan alapuolella. Maanpaineseinät rakennetaan aina eristeettömistä perusharkoista ja ulkopinnassa käytetään tarvittaessa lisäeristystä.
![]() |
Kuvassa Leca harkoista toteutettavan kellarin leikkauskuva |
lauantai 3. marraskuuta 2012
Talon pohjapiirustuksia versio 2
Talohankkeemme alkoi perinteisesti talokirjojen tilaamisella ja niiden selailulla. Informaatioähkyn ja tietynlaisen turtumisen jälkeen seuraava vaihe oli alkaa suunnitella pohjaratkaisua itse. Siinä vaiheessa pyysin apuun velipoikani jolla oli käytössä AutoCAD ohjelmisto ja hänellä on kokemusta pohjapiirustusten tekemisestä. Mitään allaolevista pohjaratkaisuista ei ole mietitty loppuun asti. En myöskään tarpeeksi selkeästi tuonut esille tiettyjä vaatimuksia, joten nämä asiat sitten toistuvat monissa pohjapiirustuksissa. Esimerkiksi ensimmäisistä versioista puuttui takka kokonaan, koska Pasi luuli ettemme halua sitä yläkertaan. Tai se että kylpyhuone ja kodinhoitohuone eivät saa olla samassa tilassa.
Ensimmäinen version pohjapiirustus muistutti paljon yksien naapurien pohjaratkaisua. Se versio oli kuitenkin täysin raakile eikä sille tehty mitään muutoksia, joten Pasi ei halunnut sitä näytille. Ensimmäisestä versiosta kehitelty jatkoversio löytyy kuitenkin numerolla 6.
Toisessa versiossa keittiö muutettiin samalle seinälle kuin olohuone. Tämän version hyviä puolia oli ovi vanhempien makuuhuoneesta parvekkeelle, kaksi WC.tä ja vanhempien makuuhuone erillään lasten huoneista. Ei niin hyviä puolia oli liian kaukana keittiöstä oleva kodinhoitotila, suihku-/kodinhoitotilat yhdessä ja avokeittiö. Marita ei halua avokeittiötä.
Kolmas versio oli ja on edelleen Maritan suosikkipohja. Hyviä puolia olivat pääsy keittiöön heti eteisestä, samoin kodinhoitohuoneeseen. Miinuksena olivat vain yksi WC, liian kapea vaatehuone ja kylpyhuone.
Neljännessä versiossa yksi makuuhuoneista jätettiin pois. Talon pohja alkoi jo muistuttaa rintamamiestaloa. Plussana oli kaksi WC:tä. Miinuksena suihku- ja kodinhoitotilat yhdessä.
Viidennessä versiossa talon pohja muutettiin monimuotoisemmaksi. Nyt siinä oli mukana kaikki yläkertaan haluamamme tilat. Minä pidin tästä ratkaisusta eniten. Plussana oli kaksi WC:tä ja yhteys vanhempien makuuhuoneesta vaatehuoneeseen ja sieltä suihkutiloihin. Miinuksena suihku- ja kodinhoitotilat yhdessä. Tässä ratkaisussa oli ehkä liikaa kulmia, nyt niitä oli yhteensä 10 kpl.
Kuudennessa versiossa kokeiltiin taas keittiön sijoittamista tontin takaosaan. Tämä oli siis se ykkösversiosta edelleen kehitelty pohja. Plussana oli pääsy vanhempien makuuhuoneesta parvekkeelle ja kaksi WC:tä. Miinuksena suihku- ja kodinhoitotilat yhdessä.
Seitsemännessä versiossa oli taas pudotettu yksi makuuhuone alakertaan. Plussana oli käynti vanhempien makuuhuoneesta vaatehuoneeseen ja sieltä suihkutiloihin sekä kaksi WC:tä. Miinuksena suihku- ja kodinhoitotilat yhdessä.
Kahdeksas versio oli muokattu versio numero kolmosesta. Plussana kaksi WC:tä. Miinuksena suihku- ja kodinhoitotilat yhdessä.
Yhdeksännessä versiossa kokeiltiin keittiön sijoittamista talon toiseen laitaan, jolloin olisi saatu isompi parveke. Nyt taas kodinhoitohuone ja toinen WC lähtivät pois. Marita haluaa ehdottomasti kodinhoitohuoneen yläkertaan.
Kymmenennessä versiossa portaat muuttuivat U-portaiksi ja taas yksi makuuhuoneista matkasi alakertaan. Miinuksena suihku- ja kodinhoitotilat yhdessä. Tämä on myös hyvä pohja.
Aika paljon erilaisia pohjaratkaisuja ehdittiin laatimaan, jokaisesta olisi saanut toimivan pohjan jos olisimme lähteneet kehittämään niitä eteenpäin. Suurin osa piirustuksista oli sellaisia jotka Pasi teki sen jälkeen kun olimme jo päättäneet ottaa arkkitehdin tekemään piirustukset. Katsotaan kuinka hyvin ammattilainen pystyy ratkaisemaan rinnetontin asettamat vaatimukset.
Ensimmäinen version pohjapiirustus muistutti paljon yksien naapurien pohjaratkaisua. Se versio oli kuitenkin täysin raakile eikä sille tehty mitään muutoksia, joten Pasi ei halunnut sitä näytille. Ensimmäisestä versiosta kehitelty jatkoversio löytyy kuitenkin numerolla 6.
Toisessa versiossa keittiö muutettiin samalle seinälle kuin olohuone. Tämän version hyviä puolia oli ovi vanhempien makuuhuoneesta parvekkeelle, kaksi WC.tä ja vanhempien makuuhuone erillään lasten huoneista. Ei niin hyviä puolia oli liian kaukana keittiöstä oleva kodinhoitotila, suihku-/kodinhoitotilat yhdessä ja avokeittiö. Marita ei halua avokeittiötä.
Kolmas versio oli ja on edelleen Maritan suosikkipohja. Hyviä puolia olivat pääsy keittiöön heti eteisestä, samoin kodinhoitohuoneeseen. Miinuksena olivat vain yksi WC, liian kapea vaatehuone ja kylpyhuone.
Neljännessä versiossa yksi makuuhuoneista jätettiin pois. Talon pohja alkoi jo muistuttaa rintamamiestaloa. Plussana oli kaksi WC:tä. Miinuksena suihku- ja kodinhoitotilat yhdessä.
Viidennessä versiossa talon pohja muutettiin monimuotoisemmaksi. Nyt siinä oli mukana kaikki yläkertaan haluamamme tilat. Minä pidin tästä ratkaisusta eniten. Plussana oli kaksi WC:tä ja yhteys vanhempien makuuhuoneesta vaatehuoneeseen ja sieltä suihkutiloihin. Miinuksena suihku- ja kodinhoitotilat yhdessä. Tässä ratkaisussa oli ehkä liikaa kulmia, nyt niitä oli yhteensä 10 kpl.
Kuudennessa versiossa kokeiltiin taas keittiön sijoittamista tontin takaosaan. Tämä oli siis se ykkösversiosta edelleen kehitelty pohja. Plussana oli pääsy vanhempien makuuhuoneesta parvekkeelle ja kaksi WC:tä. Miinuksena suihku- ja kodinhoitotilat yhdessä.
Seitsemännessä versiossa oli taas pudotettu yksi makuuhuone alakertaan. Plussana oli käynti vanhempien makuuhuoneesta vaatehuoneeseen ja sieltä suihkutiloihin sekä kaksi WC:tä. Miinuksena suihku- ja kodinhoitotilat yhdessä.
Kahdeksas versio oli muokattu versio numero kolmosesta. Plussana kaksi WC:tä. Miinuksena suihku- ja kodinhoitotilat yhdessä.
Yhdeksännessä versiossa kokeiltiin keittiön sijoittamista talon toiseen laitaan, jolloin olisi saatu isompi parveke. Nyt taas kodinhoitohuone ja toinen WC lähtivät pois. Marita haluaa ehdottomasti kodinhoitohuoneen yläkertaan.
Kymmenennessä versiossa portaat muuttuivat U-portaiksi ja taas yksi makuuhuoneista matkasi alakertaan. Miinuksena suihku- ja kodinhoitotilat yhdessä. Tämä on myös hyvä pohja.
Aika paljon erilaisia pohjaratkaisuja ehdittiin laatimaan, jokaisesta olisi saanut toimivan pohjan jos olisimme lähteneet kehittämään niitä eteenpäin. Suurin osa piirustuksista oli sellaisia jotka Pasi teki sen jälkeen kun olimme jo päättäneet ottaa arkkitehdin tekemään piirustukset. Katsotaan kuinka hyvin ammattilainen pystyy ratkaisemaan rinnetontin asettamat vaatimukset.
perjantai 2. marraskuuta 2012
Asunnon myynti
Huolestuttavat tiedot asuntojen hintojen laskusta, myynnin hidastumisesta ja varainsiirtoveron noususta saivat vipinää meidän nykyisen asunnon myyntiin. Soitin Taselle joka on kiinteistövälittäjä ja sovimme että hän tulee viikonloppuna käymään (muutama viikko sitten). Taisin esittää asian niin epäselvästi että hän unohti koko tapaamisen.
Marita soitti heti seuraavalla viikolla toiselle välittäjälle joka oli käynyt pari vuotta sitten arvioimassa meidän asuntoa. Meidän oli silloin tarkoitus ostaa nykyisen asunnon läheltä vanha rintamamiestalo mutta meidän tarjousta ei hyväksytty emmekä lähteneet korottamaan sitä. Välittäjä kävi meillä arvioimassa asunnon. Hintapyyntö olisi 229 000 euroa ja välityspalkkio 2,8%.
Marita halusi myös toisen arvion, joten seuraavaksi paikalle tuli OPKK:n välittäjä. Hänen hintapyyntönsä asunnolle olisi ollut 239 000 euroa ja välityspalkkio 2,95%. Hintapyyntö tuntui kyllä vähän liian optimistiselta.
Toinen kaverini Pauli oli käynyt Tasen luona ja maininnut siitä että Tase oli unohtanut käydä meillä arvioimassa asunnon hinnan. Tase soitti heti sen jälkeen ja sovittiin että hän tulee OPKK:n välittäjä jälkeen käymään meillä. En maininnut asiasta mitään Maritalle, jos Tase taas unohtaisi tulla paikalle. No tällä kertaa hän ilmestyi paikalle ja tarjosi asunnon myyntiä pienemmällä välityspalkkiolla. Hyväksyttiin Tasen tarjous ja hintapyynnöksi sovittiin 229 000 euroa. Se on velaton hinta, taloyhtiölainaa on jäljellä vähän yli 4000 euroa.
Ensimmäinen yleinen näyttö sovittiin su 5.11. Sitä ennen viikonloppuna 20.-21.10 vaihdettiin appiukon kanssa nopeasti keittiön vanhat kaapit uusiin Ikean kaappeihin. Meillä oli tehty keittiöremontti 2008 syksyllä ja se jäi silloin vähän kesken tilanpuutteen vuoksi. Se olisi vaatinut myös makuuhuoneiden remontointia jotta olisimme saaneet tarpeeksi kaappitilaa kaikelle meidän tavaramäärälle. Tase kävi kaappien vaihdon jälkeen kuvaamassa asunnon ja laittoi ilmoitukset etuovelta oikotien kautta jokakotiin.
Tällä viikolla Tase soitti että pari ostajaa olisi kiinnostuneet näkemään asunnon ennen virallista näyttöä. Sovittiin että torstaina klo 17 voisi esitellä asuntoa. Sen jälkeen meillä alkoi hillitön siivoaminen ja ylimääräisten tavaroiden piilottaminen. Peräkärry saatiin hetkessä täyteen roinasta ja lisäksi täyttyi auton takakontti (pitää lähettää romut maalle ensi viikolla). Marita siivosi keskiviikkona puoleen yöhön asti asuntoa. Torstaina minä siivosin vielä viimeiset ylimääräiset romut auton takakonttiin. Irrotin vielä porakoneella makuuhuoneen seinältä vanhan videotykin telineen ja pari muovista johtokoteloa. Sen jälkeen äkkiä koko perhe appivanhempien luo evakkoon, ensimmäiset katsojat olivat siinä vaiheessa jo pihassa.
Illalla kotiin tulon jälkeen huomasin että makuuhuoneen sängyllä olivat sulassa sovussa videotykin teline, muoviset listakotelot ja akkuporakone...
Marita soitti heti seuraavalla viikolla toiselle välittäjälle joka oli käynyt pari vuotta sitten arvioimassa meidän asuntoa. Meidän oli silloin tarkoitus ostaa nykyisen asunnon läheltä vanha rintamamiestalo mutta meidän tarjousta ei hyväksytty emmekä lähteneet korottamaan sitä. Välittäjä kävi meillä arvioimassa asunnon. Hintapyyntö olisi 229 000 euroa ja välityspalkkio 2,8%.
Marita halusi myös toisen arvion, joten seuraavaksi paikalle tuli OPKK:n välittäjä. Hänen hintapyyntönsä asunnolle olisi ollut 239 000 euroa ja välityspalkkio 2,95%. Hintapyyntö tuntui kyllä vähän liian optimistiselta.
Toinen kaverini Pauli oli käynyt Tasen luona ja maininnut siitä että Tase oli unohtanut käydä meillä arvioimassa asunnon hinnan. Tase soitti heti sen jälkeen ja sovittiin että hän tulee OPKK:n välittäjä jälkeen käymään meillä. En maininnut asiasta mitään Maritalle, jos Tase taas unohtaisi tulla paikalle. No tällä kertaa hän ilmestyi paikalle ja tarjosi asunnon myyntiä pienemmällä välityspalkkiolla. Hyväksyttiin Tasen tarjous ja hintapyynnöksi sovittiin 229 000 euroa. Se on velaton hinta, taloyhtiölainaa on jäljellä vähän yli 4000 euroa.
Ensimmäinen yleinen näyttö sovittiin su 5.11. Sitä ennen viikonloppuna 20.-21.10 vaihdettiin appiukon kanssa nopeasti keittiön vanhat kaapit uusiin Ikean kaappeihin. Meillä oli tehty keittiöremontti 2008 syksyllä ja se jäi silloin vähän kesken tilanpuutteen vuoksi. Se olisi vaatinut myös makuuhuoneiden remontointia jotta olisimme saaneet tarpeeksi kaappitilaa kaikelle meidän tavaramäärälle. Tase kävi kaappien vaihdon jälkeen kuvaamassa asunnon ja laittoi ilmoitukset etuovelta oikotien kautta jokakotiin.
Tällä viikolla Tase soitti että pari ostajaa olisi kiinnostuneet näkemään asunnon ennen virallista näyttöä. Sovittiin että torstaina klo 17 voisi esitellä asuntoa. Sen jälkeen meillä alkoi hillitön siivoaminen ja ylimääräisten tavaroiden piilottaminen. Peräkärry saatiin hetkessä täyteen roinasta ja lisäksi täyttyi auton takakontti (pitää lähettää romut maalle ensi viikolla). Marita siivosi keskiviikkona puoleen yöhön asti asuntoa. Torstaina minä siivosin vielä viimeiset ylimääräiset romut auton takakonttiin. Irrotin vielä porakoneella makuuhuoneen seinältä vanhan videotykin telineen ja pari muovista johtokoteloa. Sen jälkeen äkkiä koko perhe appivanhempien luo evakkoon, ensimmäiset katsojat olivat siinä vaiheessa jo pihassa.
Illalla kotiin tulon jälkeen huomasin että makuuhuoneen sängyllä olivat sulassa sovussa videotykin teline, muoviset listakotelot ja akkuporakone...
Tilaa:
Blogitekstit (Atom)