Saimme eilen arkkitehdiltä uudet pohjakuvat. Täytyy vielä tarkistaa ne mutta näillä kuvilla on tarkoitus hakea rakennuslupaa. Tai alakertaan on vielä tulossa pari muutosta, ei kylläkään meidän pyytäminä. Yksi rakennesuunnittelija, jolle lähetin kuvat tarjouspyynnön yhteydessä, oli ottanut yhteyttä arkkitehtiin ja sanonut että alakerran aulan ja makuuhuoneiden välinen seinä pitäisi muuttaa kantavaksi seinäksi. Lisäksi portaan ala- ja yläpäähän tulisi luultavasti pilarit. Alaosan kohdalla se on ok mutta yläosan kohdalle oli ajateltu sijoittaa sohva. Täytyy vielä keskustella rakennesuunnittelijan kanssa tästä asiasta. Vai muutetaanko suunnitelmia ja laitetaan nojatuolit pilarin molemmin puolin...
Julkisivukuvissa näkyvä peltikate ei kyllä tule olemaan noin tiheällä jaolla. Tarkoituksena olisi asennuttaa konesaumattu peltikate.
 |
Julkisivukuvat |
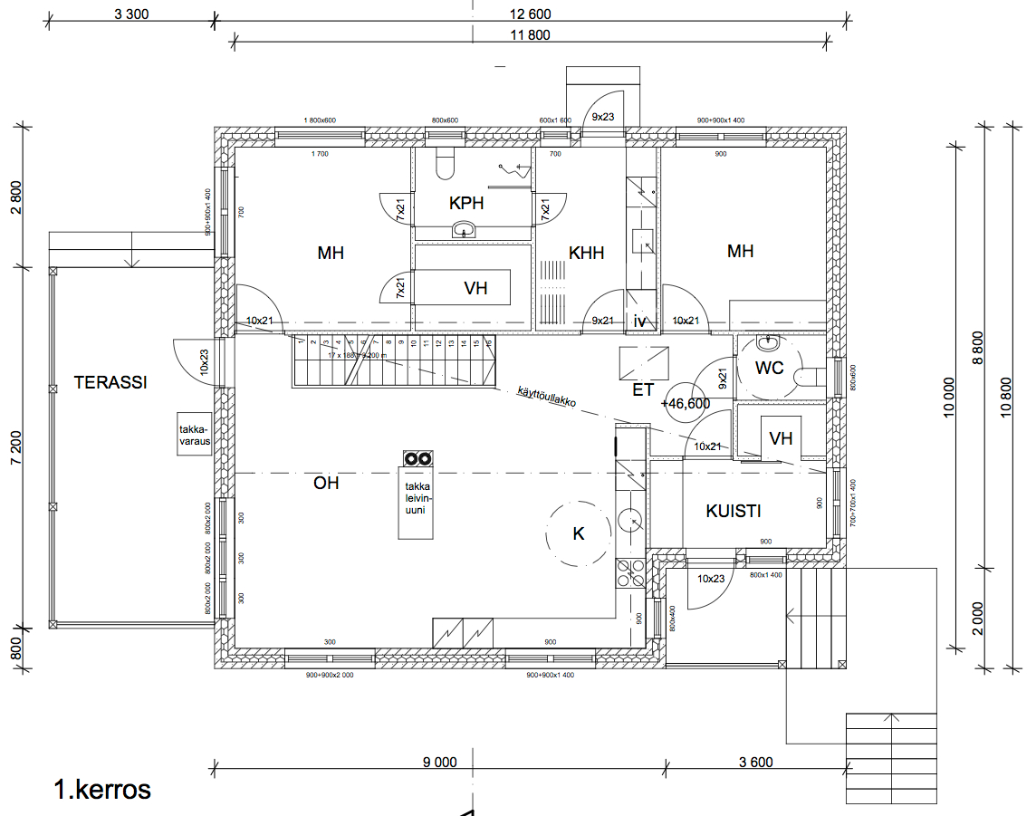
Ensimmäinen kerros alkaisi nyt olla lopullisessa kuosissaan. Ovet makuuhuoneesta kylpyhuoneeseen ja vaatehuoneeseen ovat nyt samankokoiset mikä miellyttää minun silmää enemmän kuin erikokoiset ovet. Vieras WC:tä venytettiin juuri sen verran että sinne saatiin pyörätuolin vaatima ympyrä (saadaan viranomaiset tyytyväisiksi). Portaikkoa levennettiin 850 mm:stä 1000 mm:iin joten sinnekin saatiin sitä kaivattua väljyyttä, eivät nuo ympärillä olevat umpiseinät ahdista niin paljon. Yläkerrassa on tarkoitus portaiden viereen laittaa kattoon asti yltävä seinä, että saadaan televisio nostettua seinälle. Yläkerrassa on nimittäin aika vähän yhtenäistä seinätilaa. Terassilla on nyt ulkotakkavaraus iltojen iloksi.
 |
1. kerroksen pohjakuva |
Alakertaan on siis tulossa vielä pieniä muutoksia. Kylpyhuoneesta ja saunasta jäi nyt sitten ikkunat pois mutta kaikkea ei voi saada kerralla. Toisaalta asumme tällä hetkellä Maritan vanhempien luona kerrostalossa ja täällä taloyhtiön saunatilat ovat kellarissa. Ikkunoita ei ole edes pukuhuoneessa ja eipä tuo ole yhtään haitannut.
 |
Kellarin pohjakuva |
Molemmilta pihasuunnittelijaehdokkailta on nyt saatu tarjoukset. Hintaero näiden välillä ei ole suuri mutta tarjousten sisältöjen vertaaminen keskenään on yhtä tuskaa. Jotenkin tarjouspyynnöt pitäisi pystyä tekemään niin että saadut tarjoukset olisivat keskenään vertailukelpoisia. Tällä viikolla pitäisi pihasuunnittelija valita.
Sisustussuunnittelijaksi valitaan varmaankin halvempi vaihtoehto. Tässä tapauksessa hintaero on nimittäin jo merkittävä. Minulle selvisi vasta viikonloppuna että toisella ehdokkaallamme on ollut oma sisustusohjelma televisiossa.